Подати оголошенняПодати

Продаж однокімнатної квартири м. Одеса, вул. Дача Ковалевського 5 (СТР)

Кімнат: 1
Площа: 39 / - / 14
Поверх: 22 / 26
41 500 $
Можлива ріелторська комісія. (більше)
Ваши заметки

Вы не залогинены, заметки будут доступны только на текущем устройстве. Подробнее

 
Фото квартири, м. Одеса, вул. Дача Ковалевського 5 (СТР) (21993-1)
Адреса: м. Одеса, вул. Дача Ковалевського 5 (СТР), Київський район    
До моря: 400 м (4-6 хв. пішки)
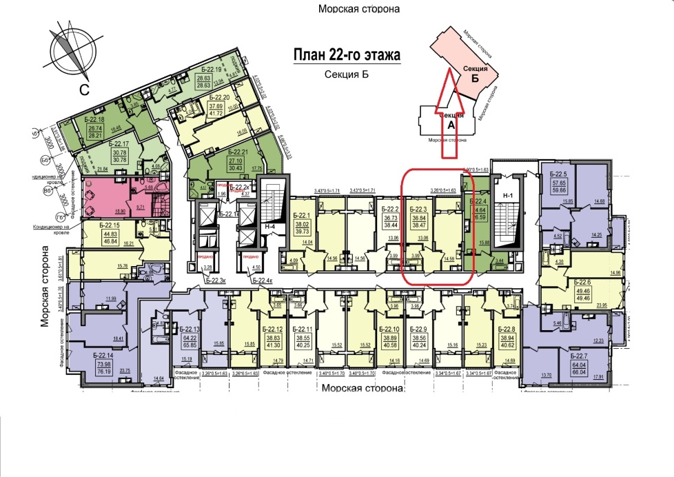
Житловий комплекс: ЖК Посейдон, секція Б (Гефест)
Кімнат: 1
Площа: 39 / - / 14
Кухня-студія
Поверх: 22 / 26
Стан: Від будівельників
Тип будинку: Монолітний
Рік побудови: 2026
Люкс-опції: Гарний/панорамний видВид на море/річку/озеро
Опис:
Опис:
Продам однокомнатную квартиру в ЖК "Посейдон", на 16-й станции Большого Фонтанa, от СК Гефест. Рядом набережная и море, пляж Золотой берег. Вид на море и частный сектор. Дом сдан! Общая площадь 38,47 м². Балкон. Высокие потолки. Квартира юго-западная, вид на море и на город. Состояние — от строителей. Введены все коммуникации, установлены бронированные двери, металлопластиковые окна, радиаторы. Светлая, просторная квартира. Самая низкая цена в комплексе! Подземный паркинг, генератор. Закрытая охраняемая территория, детская площадка. Рядом несколько супермаркетов, магазины, кафе, рестораны, Новая почта, школы и детские сады. Рядом парк "Зелёный гай". До набережной, пляжа и моря — 3 минуты пешком. Продажа по переуступке (оплачивает продавец). Видео по запросу. Быстрый показ. - - - ---- - - - Продам однокімнатну квартиру в ЖК "Посейдон", на 16 станції Великого Фонтанa, від СК Гефест. Поруч набережна та море, пляж Золотий берег. Вид на море та приватний сектор. Будинок зданий! Загальна площа 38,47 м ². Балкон. Високі стелі. Квартира південно-західна, вид на море та місто. Стан – від будівельників. Запроваджено всі коммунікації, встановлені броньовані двері, металлопластикові вікна, радіатори. Світла простора квартира. Найнижча ціна у комплексі! Підземний паркінг, генератор. Закрита територія, що охороняється, дитячий майданчик. Поруч кілька супермаркетів, магазини, кафе, ресторани, Нова пошта, школи та дитячі садки. Поруч парк "Зелений гай". До набережної, пляжу та моря – 3 хвилини пішки. Продаж з переуступки (оплачує продавець). Відео на запит. Швидкий показ. - - - ---- - - - One-bedroom apartment for sale in the Poseidon residential complex, at the 16th station of Bolshoi Fontan, from SK Gefest. Nearby are the embankment, the sea, and the Golden Beach. Views of the sea and private property. The building is completed! Total area: 38.47 sq. m. Balcony. High ceilings. The apartment faces southwest, with views of the sea and the city. Construction condition: All utilities are in place, including armored doors, PVC windows, and radiators. Bright, spacious apartment. Lowest price in the complex! Underground parking, generator. Gated, guarded territory, and playground. Nearby are several supermarkets, shops, cafes, restaurants, the Novaya Post Office, schools, and kindergartens. Green Gai Park is nearby. The embankment, beach, and sea are a 3-minute walk away. Sale by assignment (seller pays). Video upon request. Quick showing. - -------- - Cel mai mic preț din complex Apartament cu un dormitor de vânzare în complexul rezidențial Poseidon, la stația Bolshogo Fontan nr. 16, față de SK Gefest. În apropiere se află malul apei, marea și plaja Golden Beach. Vedere la mare și sector privat. Clădire finalizată. Etajul 22 (24). Secțiunea B. Suprafață totală: 38,47 m². Balcon. Tavane înalte. Apartamentul este orientat spre sud-vest, cu vedere la mare și oraș. Stare: construcție nouă. Toate utilitățile sunt conectate, inclusiv uși blindate, ferestre PVC și calorifere. Apartament luminos, spațios, cel mai mic preț din complex. Parcare subterană, generator Zonă închisă, păzită, loc de joacă pentru copii Mai multe supermarketuri, magazine, cafenele, restaurante, Poșta Novaya, școli și grădinițe sunt în apropiere. Parcul Zeleny Gai este în apropiere. Promenada de pe plajă și marea se află la 3 minute de mers pe jos. Vânzare prin cesiune (vânzătorul plătește) Video la cerere. Vizionare rapidă.
Ще 19 фото:
Фото квартири, м. Одеса, вул. Дача Ковалевського 5 (СТР) (21993-2)
Фото квартири, м. Одеса, вул. Дача Ковалевського 5 (СТР) (21993-3)
Фото квартири, м. Одеса, вул. Дача Ковалевського 5 (СТР) (21993-4)
Фото квартири, м. Одеса, вул. Дача Ковалевського 5 (СТР) (21993-5)
Фото квартири, м. Одеса, вул. Дача Ковалевського 5 (СТР) (21993-6)
Фото квартири, м. Одеса, вул. Дача Ковалевського 5 (СТР) (21993-7)
Фото квартири, м. Одеса, вул. Дача Ковалевського 5 (СТР) (21993-8)
Фото квартири, м. Одеса, вул. Дача Ковалевського 5 (СТР) (21993-9)
Фото квартири, м. Одеса, вул. Дача Ковалевського 5 (СТР) (21993-10)
Фото квартири, м. Одеса, вул. Дача Ковалевського 5 (СТР) (21993-11)
Фото квартири, м. Одеса, вул. Дача Ковалевського 5 (СТР) (21993-12)
Фото квартири, м. Одеса, вул. Дача Ковалевського 5 (СТР) (21993-13)
Фото квартири, м. Одеса, вул. Дача Ковалевського 5 (СТР) (21993-14)
Фото квартири, м. Одеса, вул. Дача Ковалевського 5 (СТР) (21993-15)
Фото квартири, м. Одеса, вул. Дача Ковалевського 5 (СТР) (21993-16)
Фото квартири, м. Одеса, вул. Дача Ковалевського 5 (СТР) (21993-17)
Фото квартири, м. Одеса, вул. Дача Ковалевського 5 (СТР) (21993-18)
Фото квартири, м. Одеса, вул. Дача Ковалевського 5 (СТР) (21993-19)
Фото квартири, м. Одеса, вул. Дача Ковалевського 5 (СТР) (21993-20)
Точне розташування
Натисніть на карту 1 раз, щоб її можна було масштабувати колесом мишки
Догори